Le groupe Dutil - Agence immobilière
NOUS JOINDRE        819-346-4444
NOUS JOINDRE        819-346-4444

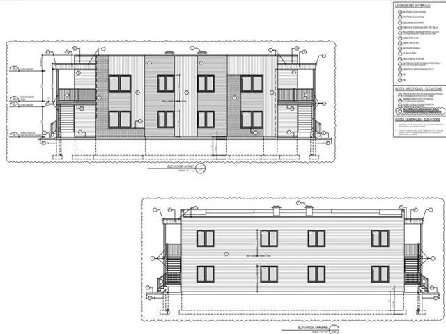
Quadruplex

909-915, Rue du Seyval
Les Nations (Sherbrooke) / Jacques-Cartier

1 575 000 $


Délai d'occupation : 60 jours
5 pièces   3 chambres   1 salle de bain

Voir toutes les images

Prêt à être livré! Plateau McCrea! Immeuble clé en main, prêt pour le printemps 2026, comprenant 4 x 5 1/2 pièces très spacieux comprenant 3 chambres à coucher, 2 salles de bains, walk-in, comptoir lunch, thermopompe murale éco énergétique, chauffage radiant au rdc et 2 stationnements par logement. Style contemporain. Offrez vous la tranquillité d'esprit!

# 20337407

Partager

Source : LE GROUPE DUTIL, Agence immobilière

Information générale

Catégorie
Multi-familiale (2 à 5 logements)
Genre
Quadruplex
Pièces
5
Chambres
3
Salles de bain
1

Bâtiment

Année
Inconnue
Façade
50.8 pieds
Profondeur
49.4 pieds
Superficie
2752 pieds carrés
Aire habitable
5504 pieds carrés

Terrain

Façade
37.28 mètres
Superficie
835.8 mètres carrés

Évaluation (2025)

Terrain
204 100 $

Revenus

Dernière révision des revenus
2025-10-24
Potentiel brut résidentiel
93 600 $ / an

Dépenses

 
Mensuel
Annuel
Assurances
167 $
2 000 $
Déneigement / pelouse
83 $
1 000 $
Taxes municipales (2026)
879 $
10 550 $
Taxes scolaires (2025)
9 $
110 $
Total :
1 138 $
13 660 $
Allée
Asphalte
Approvisionnement en eau
Municipalité
Armoires
Mélamine
Base de sous-sol
Dalle de béton au sol
Énergie pour le chauffage
Électricité
Équipement disponible
Thermopompe murale
Fenêtres
PVC
Mode de chauffage
Plinthes électriques, Radiant
Proximité
Autoroute/Voie rapide, Golf, Piste cyclable, École secondaire, Garderie/CPE, Parc-espace vert, École primaire, Transport en commun
Revêtements
Brique, Fibre pressée
Stationnement
8 Extérieur
Système d'égouts
Municipal
Toiture
Membrane élastomère
Type de fenêtre
Coulissante
Zonage
Résidentiel
Inclus
2 remises par immeuble, bac à déchet et recyclage, travaux permanents payés (aqueduc, égout, travaux d'éclairage et de l'enfouissement du réseau électrique et des télécommunications de la ville de Sherbrooke), immeuble clé en main, garantie des maisons neuves 5 ans, tps/tvq

Addenda

Livraison printemps 2026.
L'immeuble sera transigé une fois tout les logements loués
et occupés pour le printemps 2026é
Appartements luxueux situés dans un secteur recherché du
Nord de Sherbrooke
Huit espaces de stationnements
Chaque unité du rdc comprend un balcon de 10 x 17 p. en
béton et un balcon à l'étage de 11 x 12 p. Escaliers en
aluminium sans entretien.
2 remises de 8,25 x 8,25 p sur dalle de béton.
Thermopompe écoénergétique murale dans chaque unité pour un
confort assuré
Comptoir en granit
Garde-manger style walk-in
Chauffage radiant au rdc, plinthe électrique 2e étage
Salle de lavage distincte avec armoires et locker intérieur.
Câblage extérieur prévu pour voiture électrique.
Nouveau secteur plateau McCrea en forte demande et très
bien situé près des services, école, autoroute, autobus,
parcs, zone piétonnière et piste cyclable.
Construction de la rue complétée à 90%.
Evaluation municipale du terrain seulement, les taxes sont
basés sur la valeur de l'immeuble voisin.
Les évaluations municipales des immeubles voisins sont de
l'ordre de 1 128 800$ et les taxes municipales d'un montant
approximatif de 10 550$.
Les photos sont à titres indicatifs. Immeuble en fin de
construction.


Francis Dutil
Courtier immobilier résidentiel et commercial agréé DA
LE GROUPE DUTIL, Agence immobilière
819-346-4444

Votre hypothèque

Montant de l'hypothèque : $
Mise de fonds : $
Taux d'intérêt : %
Taux à titre indicatif, inscrivez votre taux.
Nombre d'années : ans
Fréquence de paiement :  
 
Paiement : $
Total des versements : $
Total des intérêts : $